The New Creighton Court Community
RRHA is transforming Creighton Court and its surrounding area into a mixed-income, vibrant community of choice. This project is informed by comprehensive resident engagement and planning, including the East End Transformation Plan.
Stay Informed
For the latest information about the Creighton Court redevelopment:
Check back on this web page: rrha.com/redevelopment/creighton
Call the Information Line to hear a recorded update: (804) 780-4343
Email questions to: info@rrha.com
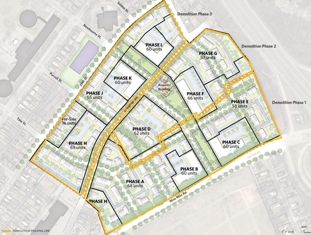
Progress
The redevelopment of Creighton Court is taking place over several years and phases. The timeline for each demolition and construction phase may vary depending on funding.

Phase B (72 Units)
- Fall 2024–Fall 2025: Construction
- Summer 2025: Lease-up






Phase A (68 Units)
- Winter 2024–Spring 2025: Construction
- Winter 2025: Lease-up
Demolition Phase 1
- Resident relocation complete!
- Summer 2022: Abatement and removal of vacant buildings
- Spring–Winter 2023: Infrastructure construction
- Winter 2024: Resident move-in





Latest News
Materials
Documents
Creighton Court Connection Newsletter
Frequently Asked Questions
For questions regarding the Creighton Court Transformation, call RRHA’s Customer Call Center at (804) 780-4200 or email CreightonRedevelopment@gmail.com.
This has been discussed for years; what has been going on?
Since 2011, Richmond Redevelopment and Housing Authority (RRHA) has actively engaged residents in an ongoing planning process.
This included the East End Transformation Plan, an application for the 2016 Choice Neighborhoods Implementation Grant, and partnership with The Community Builders, Inc. (TCB) to develop the former Armstrong high school site. Unfortunately, the 2016 Choice Neighborhoods grant application was unsuccessful.
Why is Creighton Court being torn down?
Creighton Court was built in 1953 and does not live up to today’s housing standards. The buildings no longer meet building code requirements. Additionally, the site has structural and design problems that create health and safety issues. The cost to correct these issues would be higher than to build new housing on the site
What progress has happened so far?
In 2017, Armstrong High School was donated by the City of Richmond to develop the “build-first” site for the Creighton Court redevelopment. The first three rental phases (175 units) of Armstrong Renaissance were completed and are fully occupied. The final rental phase began construction in April 2021. The homeownership portion (36 houses – eight (8) are affordable) will begin construction in early 2021. Creighton residents received priority for many of the units in Armstrong Renaissance.
As of April 2022, all households within Phase 1 of Creighton court have successfully relocated. Phase 1 demolition began in late May 2022 and was completed in mid July.
What is happening now?
Later this year, RRHA and a relocation consulting firm will hold a series of meetings with Phase 2 residents about their relocation options and how to successfully find housing. We anticipate that Phase 2 relocation will continue through January 2023.
How does this decision affect me?
All Creighton Court families will have a number of housing options, including:
- Tenant Protection Voucher (TPV)
- Off-site Project Based Voucher (PBV)
- Staying in the newly transformed Creighton Court Community (which involves temporarily relocating to another phase of Creighton until construction is complete, then a permanent move to PBV at new Creighton phase)
- Other RRHA public housing
RRHA’s Resident Services team has partnered with Housing Opportunities Unlimited (HOU) to work with you regarding your preference and to prepare each family for their preferred housing option.
How are Creighton Court residents involved in this redevelopment?
The Tenants’ Bill of Rights was created with a lot of input from the Creighton Court Tenant Council, RRHA, and the City of Richmond. It provides the basis for resident housing choice, resident support services, and monthly communications.
Although the Master Plan is complete, resident input is needed for the continued planning and transformation of Creighton Court.
When will demolition, relocation, and re-occupancy of families begin?
Phase 1 Creighton Court families have already successfully relocated, and Phase 1 demolition was completed in July 2022. The anticipated project schedule for the next two years is as follows:
| November 2022 – June 2023 | Phase 1 Infrastructure Construction |
| December 2022 – May 2024 | Phase A Construction (68 units) |
| May 2024 – July 2024 | Phase A Lease-Up |
| March 2023 – April 2024 | Phase B Construction (72 units) |
| April 2024 – June 2024 | Phase B Lease-Up |
Who is responsible for relocating residents?
RRHA and The Community Builders have partnered with Housing Opportunities Unlimited (HOU) for resident relocation. HOU specializes in assisting tenants and residents that are in transition due to major redevelopment construction projects. HOU’s mission is to ensure that residents are treated fairly and experience minimal physical and emotional stress during the relocation process.
Visit the HOU Team: 2053 Creighton Road
Call the HOU Team: 804-403-7545 (Kaprice Williams) or 804-430-5641 (MeShelle Swarez)
What are my options for relocating?
Resident options for relocation include:
- Tenant Protection Voucher (TPV)
- Off-site Project Based Voucher (PBV)
- Staying in the newly transformed Creighton Court Community (which involves temporarily relocating to another phase of Creighton until constructions is complete)
- Other RRHA public housing
What are Tenant Protection Vouchers (TPVs) and Project Based Vouchers (PBVs)?
TPVs and PBVs are part of the Housing Choice Voucher (HCV) program. Tenant Protection Vouchers are committed by HUD to RRHA in assisting families with relocation or replacement housing due to the redevelopment of Creighton Court. With a TPV, families will choose their own unit to use the voucher, paying 30% of their income toward rent. The rest is paid to the landlord by RRHA.
PBVs are vouchers that are assigned to a unit, which is most often within a newly developed apartment complex. A PBV works the same way for residents, but the assistance stays with the unit. RRHA has awarded over 493 PBVs to neighborhoods in the Richmond Community. Creighton Court families generally have priority in leasing these units.
Did RRHA stop leasing units at Creighton Court?
Yes. Creighton Court is in the process of being redeveloped.Because development will occur at the original site, the vacated units must remain vacant until the redevelopment work can begin. The U.S. Department of Housing and Urban Development (HUD) requires that we do not re-lease units that have been designated for removal.
As always, our Agency looks for every opportunity to be a strong community partner. We assist however we can within the guidelines and processes that govern our existence. As part of our commitment to our families, RRHA used a “build first” strategy to cause less disruption to our families and provide a smooth relocation experience. New units constructed at the Armstrong Renaissance have provided relocation options to many Creighton families as the build-first site.
Will units be replaced one-for-one?
Every Creighton family will be provided housing. In transforming Creighton Court and the remaining 2,855 units located in the Big 6 public housing communities (Creighton, Fairfield, Gilpin, Hillside, Mosby and Whitcomb,) RRHA is committed to providing the SAME NUMBER (2,855) of subsidized housing options for the current households who live in our communities.
How will RRHA ensure all Creighton families are housed?
One of the revitalization goals of RRHA is to provide more affordable housing options by increasing density. Currently there are 504 units in Creighton Court. The approved Master Plan is designed for an increase of 196 mixed-income units, for a total of 700 units on the site.
By increasing the number of units, we can offer affordable and market rate houses to more Creighton and Richmond families. Greater use of Tenant Protection and Project Based Voucher options for families will help ensure all Creighton families are housed.
Armstrong Renaissance Community

Creighton Court revitalization began in 2017 with the transformation of the former Armstrong High School site. The revitalized site will feature:
- 256 total units (finished in 2021)
- 130 multifamily rental units
- 90 senior rental units
- 36 single-family homes for homeownership
- A balanced mix of housing types with both rental apartments and homeownership options
- A 4,000 SF community center for afterschool activities
- New streets to tie the development into the existing neighborhood
- A historical garden honoring the unique and powerful legacy of the former Armstrong High School
- A central park that will accommodate outdoor recreational activities for families
- Supportive resident services, including case management and referrals for employment training, healthcare, and programs tailored to meet the needs of the community families and the elderly population
- Property management and leasing offices
Partners
Richmond Redevelopment and Housing Authority (RRHA) and the City of Richmond have been planning for the redevelopment of Creighton Court since 2011. RRHA selected The Community Builders (TCB) in 2014 to lead the developments at Armstrong Renaissance and Creighton Court. The developments are made possible by a variety of other stakeholders, including Virginia Housing and the Virginia Department of Housing and Community Development.
- Co-developers: The Community Builders, Inc. (TCB), Richmond Redevelopment and Housing Authority (RRHA), and City of Richmond
- Master Planner & Architect: Torti Gallas and Partners
- Project Engineer: Timmons Group
- Infrastructure Contractor: KBS Inc.
- Resident Services: The Community Builders, Inc. (TCB)

